Портфолио
      
Студии
      
Все подрядчики
       
Дома в аренду
        
Журнал
       
Войти
   
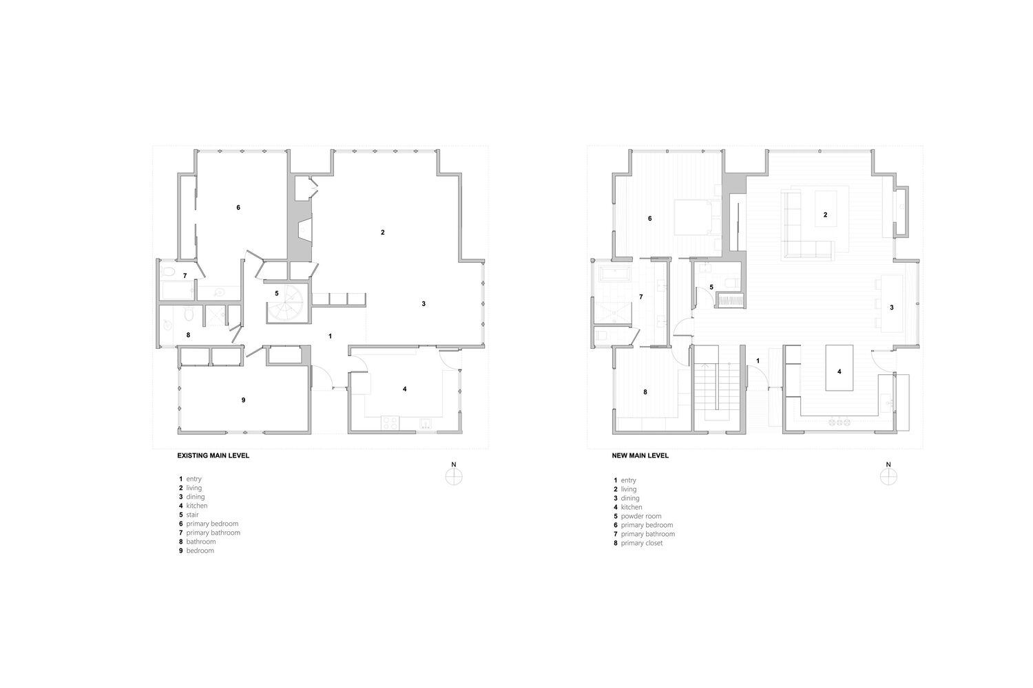
The Mori House
SHED Architecture & Design
Переделка дома в лесу для семьи
15
0
Поделиться
Обсуждение
Пожалуйста,
войдите
, чтобы прокомментировать
Другие материалы
The Mori House
Как выбрать коттеджный поселок. 5 рекомендаций
Dubldom Kedr
8 уловок, чтобы освежить интерьер за пару дней
Обсуждение
Пожалуйста, войдите, чтобы прокомментировать